
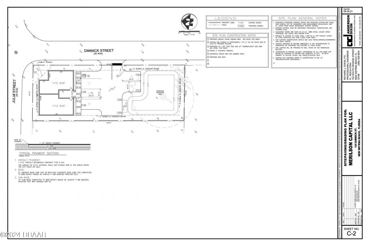
ATTN BUILDER/INVESTORS...an array of potential opportunities available for this Canal St area parcel in New Smyrna Beach located in the MU zoning corridor. There is a very limited supply of MU zoned vacant land available in the city of New Smyrna Beach. This property located 1/2 blk off W Canal Street just to the N of the American Legion Club. The highest and best use appears to be multifamily/ rental income. Site plan was completed for a triplex bldg with a 2 bed/1 bath unit upstairs and two 1...ATTN BUILDER/INVESTORS...an array of potential opportunities available for this Canal St area parcel in New Smyrna Beach located in the MU zoning corridor. There is a very limited supply of MU zoned vacant land available in the city of New Smyrna Beach. This property located 1/2 blk off W Canal Street just to the N of the American Legion Club. The highest and best use appears to be multifamily/ rental income. Site plan was completed for a triplex bldg with a 2 bed/1 bath unit upstairs and two 1 bed/1 bath downstairs units w/ annual income estimated to be substantial. THIS MIXED USE DISTRICT forms the metropolitan center for commercial, financial, professional, governmental, and cultural activities. Many uses are permitted so check out City of New Smyrna Beach MU zoning regs.
View MoreCourtesy of
Agency Name: Collado Real Estate
Agent Name: Bryan Disbrow
Presented by
Agent Name: Matthew Stanley PA
Agent Phone: 954.661.2840
Agency Title: The Keyes Company
Request Info
Send an email with a link to
124 Dimmick Street, New Smyrna Beach, FL 32168.
Email 124 Dimmick Street, New Smyrna Beach, FL 32168
Thank you for your inquiry! As a thank you, we have a Special Mortgage Offer for You.
We would like to provide you a free, no-obligation, home loan pre-approval review.