
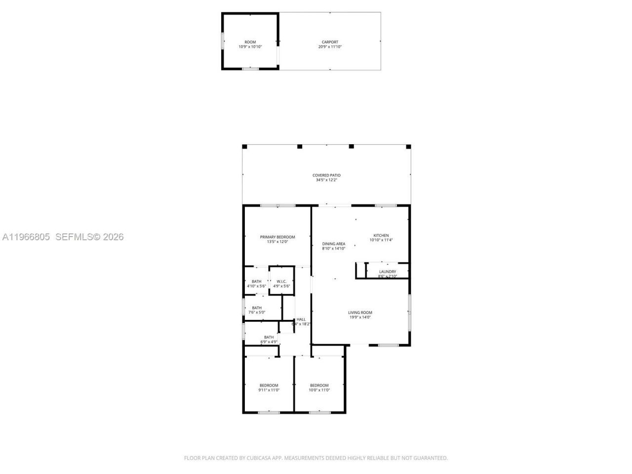
Your new home awaits! No HOA and over $40,000 in renovations. This freshly painted corner lot property offers four bedrooms and two baths with a versatile layout. The home features two separate driveways, including a dedicated driveway leading directly to the accessory structure in the backyard with a 4th spare room, done with permits, creating an ideal setup for guests, or a private workspace with added privacy and convenience. Inside, youll find an updated kitchen with quartz countertops, stai...Your new home awaits! No HOA and over $40,000 in renovations. This freshly painted corner lot property offers four bedrooms and two baths with a versatile layout. The home features two separate driveways, including a dedicated driveway leading directly to the accessory structure in the backyard with a 4th spare room, done with permits, creating an ideal setup for guests, or a private workspace with added privacy and convenience. Inside, youll find an updated kitchen with quartz countertops, stainless steel appliances, tile flooring, and comfortable living spaces with generously sized bedrooms and bathrooms. The covered lanai creates a true outdoor living area perfect for entertaining or relaxing. Move in ready with plenty of room to park a boat, multiple vehicles, or design the outdoor setup youve been wanting! Conveniently located just minutes from the highway, shopping, dining, and top rated schools. A rare blend of flexibility, location and pride of ownership throughout. Dont miss this opportunity! Seller Motivated. Please ask us about the 3-2-1 approved lender buydown. Meaning you get an interest rate as low as 3% with a monthly payment probably lower than what youre paying in rent!! Scroll down to facts & features, click on show more, then click View virtual tour for your Virtual Interactive Lifestyle Concierge! Ask anything. Explore everything.
View MoreCourtesy of
Agency Name: Keller Williams Capital Realty
Agency Phone: 305-662-7325
Agent Name: Ricky Kallabat
Presented by
Agent Name: Matthew Stanley PA
Agent Phone: 954.661.2840
Agency Title: The Keyes Company
Request Info
Send an email with a link to
13844 SW 15th St, Miami, FL 33184.
Email 13844 SW 15th St, Miami, FL 33184
Thank you for your inquiry! As a thank you, we have a Special Mortgage Offer for You.
We would like to provide you a free, no-obligation, home loan pre-approval review.