
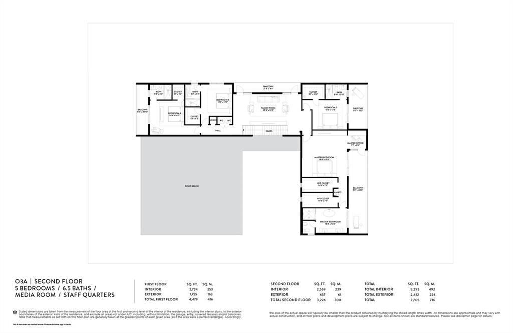
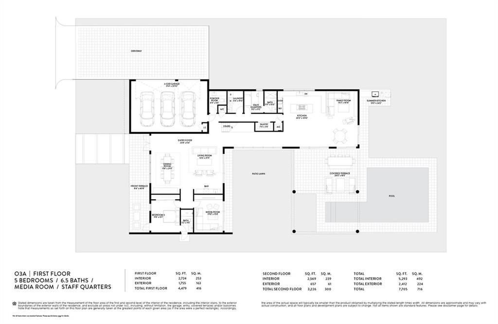
Botaniko Weston. Model O3A
Courtesy of
Agency Name: Douglas Elliman
Agency Phone: 954-874-0740
Agent Name: Kenny Allen Drysdale
Presented by
Agent Name: Matthew Stanley PA
Agent Phone: 954.661.2840
Agency Title: The Keyes Company
Request Info
Send an email with a link to
16479 Botaniko Drive, Weston, FL 33326.
Email 16479 Botaniko Drive, Weston, FL 33326
Thank you for your inquiry! As a thank you, we have a Special Mortgage Offer for You.
We would like to provide you a free, no-obligation, home loan pre-approval review.