
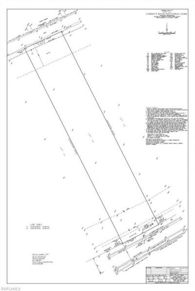
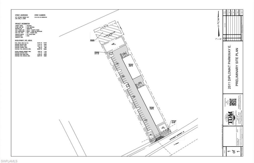
Been looking to build your own industrial warehouses , you just found here Prime Commercial C3 zoned Industrial in City of Cape Coral - Corbett Road Industrial Park. Lot dimension is 100ft wide by 535 ft +/- deep.Survey available . City Water and sewer at site. Diplomat Parkway allows easy access to US 41 and property is within 600 feet of VA Clinic and Pine Island Road is just minutes. Proposed Site plan for 2 buildings has been reviewed by City with Approvals available upon request as well as ...Been looking to build your own industrial warehouses , you just found here Prime Commercial C3 zoned Industrial in City of Cape Coral - Corbett Road Industrial Park. Lot dimension is 100ft wide by 535 ft +/- deep.Survey available . City Water and sewer at site. Diplomat Parkway allows easy access to US 41 and property is within 600 feet of VA Clinic and Pine Island Road is just minutes. Proposed Site plan for 2 buildings has been reviewed by City with Approvals available upon request as well as Enviromental assessment.
View MoreCourtesy of
Agency Name: RE/MAX Gulf Coast Realty
Agency Phone: 850-243-2220
Agent Name: Albert Baeza
Presented by
Agent Name: Matthew Stanley PA
Agent Phone: 954.661.2840
Agency Title: The Keyes Company
Request Info
Send an email with a link to
2511 Diplomat Pkwy E, Cape Coral, FL 33909.
Email 2511 Diplomat Pkwy E, Cape Coral, FL 33909
Thank you for your inquiry! As a thank you, we have a Special Mortgage Offer for You.
We would like to provide you a free, no-obligation, home loan pre-approval review.