
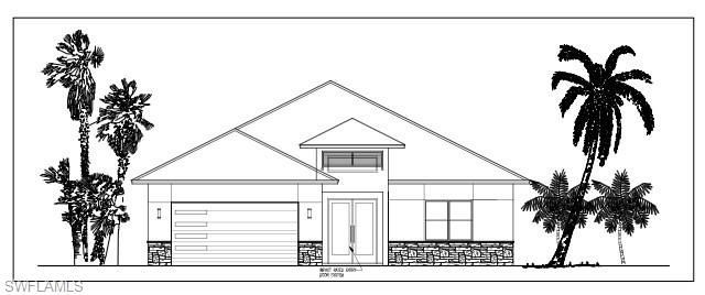
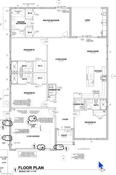
New Construction Luxury Home Near Bonita BeachesCurrently under construction with an estimated completion in early 2026.Experience the best of coastal living in Bonita Springs, just minutes from the area's world-renowned white-sand beaches. This exceptional custom home is thoughtfully designed for modern Florida living and offers 4 spacious ensuite bedrooms, 4.5 baths, and a well-planned open-concept layout that blends comfort, style, and functionality.Built with durability and elegance in mind,...New Construction Luxury Home Near Bonita BeachesCurrently under construction with an estimated completion in early 2026.Experience the best of coastal living in Bonita Springs, just minutes from the area's world-renowned white-sand beaches. This exceptional custom home is thoughtfully designed for modern Florida living and offers 4 spacious ensuite bedrooms, 4.5 baths, and a well-planned open-concept layout that blends comfort, style, and functionality.Built with durability and elegance in mind, the home will feature a metal roof, impact-resistant windows and doors, and quality craftsmanship throughout. The main living area flows seamlessly to a private outdoor oasis, complete with a resort-style pool and spa and a fully equipped outdoor kitchen. A western rear exposure provides the perfect backdrop for breathtaking sunsets and golden-hour evenings enjoyed from your own backyard.Each bedroom includes its own private bath, offering exceptional privacy and flexibility for family and guests, while the luxurious primary suite serves as a serene retreat. Contemporary architecture and high-end finishes elevate every detail of this stunning new construction.Ideally located in Bonita Springs, just a short drive to Bonita Beach, Barefoot Beach, and the Gulf of Mexico, with convenient access to dining, shopping, golf, and entertainment.Home is currently under construction. Features, finishes, and completion timeline are subject to change.
View MoreCourtesy of
Agency Name: LoKation
Agency Phone: 239-676-6828
Agent Name: Susan Beaver
Presented by
Agent Name: Matthew Stanley PA
Agent Phone: 954.661.2840
Agency Title: The Keyes Company
Request Info
Send an email with a link to
27655 Franklin St, Bonita Springs, FL 34134.
Email 27655 Franklin St, Bonita Springs, FL 34134
Thank you for your inquiry! As a thank you, we have a Special Mortgage Offer for You.
We would like to provide you a free, no-obligation, home loan pre-approval review.