
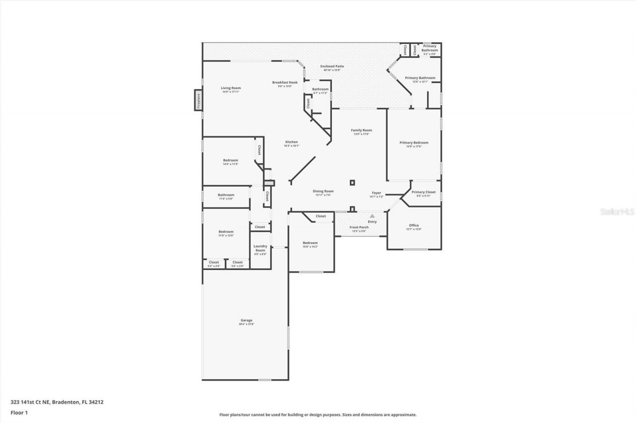
Set within a quiet cul-de-sac in desirable Country Creek, this four-bedroom, three-bath home built by La Maison. Tall ceilings and generous windows fill the home with natural light, while newer flooring throughout and a new roof (2024) make it truly move-in ready. The kitchen's warm wood cabinetry anchors the living spaces, and the home's thoughtful design includes a central vacuum system and plumbing in place for a future pool. The primary suite offers a private retreat with both a soaking tub ...Set within a quiet cul-de-sac in desirable Country Creek, this four-bedroom, three-bath home built by La Maison. Tall ceilings and generous windows fill the home with natural light, while newer flooring throughout and a new roof (2024) make it truly move-in ready. The kitchen's warm wood cabinetry anchors the living spaces, and the home's thoughtful design includes a central vacuum system and plumbing in place for a future pool. The primary suite offers a private retreat with both a soaking tub and a separate shower. Out back, the most picturesque setting awaits - tranquil lake and preserve views, with plenty of space to create the outdoor oasis you've always imagined. With oodles of room for a pool, low HOA fees, and no CDD costs, this home blends comfort, value, and beauty in one of the area's most naturally scenic communities.
View MoreCourtesy of
Agency Name: COLDWELL BANKER REALTY
Agency Contact: 941-739-6777
Agent Name: Echo Belser PA
Presented by
Agent Name: Matthew Stanley PA
Agent Phone: 954.661.2840
Agency Title: The Keyes Company
Request Info
Send an email with a link to
323 141st Court Ne, Bradenton, FL 34212.
Email 323 141st Court Ne, Bradenton, FL 34212
Thank you for your inquiry! As a thank you, we have a Special Mortgage Offer for You.
We would like to provide you a free, no-obligation, home loan pre-approval review.