
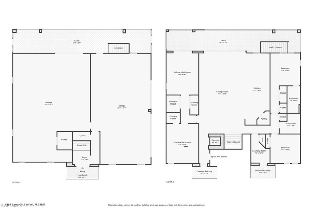
Welcome to your near beach island sanctuary-an exceptionally designed 2024 elevated new construction ICF home thoughtfully executed for both luxury living and long-term resiliency. This beautifully crafted three-bedroom, three full bathroom residence features an expansive open floor plan with engineered wood flooring throughout and soaring ceilings that enhance the home's airy coastal feel. The main living area is crowned by a striking cupola ceiling, flooding the space with additional natural l...Welcome to your near beach island sanctuary-an exceptionally designed 2024 elevated new construction ICF home thoughtfully executed for both luxury living and long-term resiliency. This beautifully crafted three-bedroom, three full bathroom residence features an expansive open floor plan with engineered wood flooring throughout and soaring ceilings that enhance the home's airy coastal feel. The main living area is crowned by a striking cupola ceiling, flooding the space with additional natural light and creating a stunning architectural focal point that elevates everyday living. At the heart of the home, the kitchen is truly a cook's delight, offering generous prep space, premium finishes, Cambria quartz counters, Sub-Zero refrigerator/freezer, Wolf gas stove, convection oven and steam oven, oversized center island, making an ideal layout for entertaining or relaxed island living. The seamless flow between the kitchen, dining, and living areas makes the home both inviting and functional. The primary suite serves as a peaceful retreat, complete with a spa-like bathroom designed for relaxation, featuring a large walk-in shower, soaking tub, and two oversized vanities. Each additional bedroom and full bathroom afford comfort and privacy for guests. The screened rear lanai runs the entire width of the home overlooking a pristine lake and staircase to ground level screened patio area. From the main living area, there is an interior stairwell to the garage and large storage area where the private elevator access is located. Built with resiliency in mind, flooring has an epoxy finish and Denshield composite walls. This island home blends peace of mind with modern coastal sophistication-delivering the perfect balance of beauty, function, and durability in a prime island setting. This home also has plenty of room for a pool to the rear of home overlooking the lake!
View MoreCourtesy of
Agency Name: Pfeifer Realty Group LLC
Agency Phone: 239-472-0004
Agent Name: Kara Cuscaden
Presented by
Agent Name: Matthew Stanley PA
Agent Phone: 954.661.2840
Agency Title: The Keyes Company
Request Info
Send an email with a link to
3354 Barra Cir, Sanibel, FL 33957.
Email 3354 Barra Cir, Sanibel, FL 33957
Thank you for your inquiry! As a thank you, we have a Special Mortgage Offer for You.
We would like to provide you a free, no-obligation, home loan pre-approval review.