
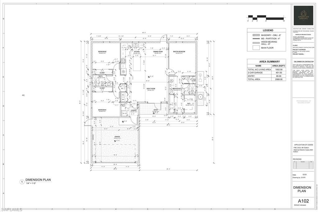
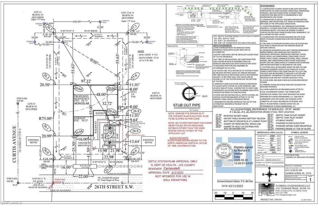
What truly sets this property apart is that it includes advanced planning and development work for a contemporary style home, saving the buyer months of paperwork, upfront costs, and administrative risk. The package includes:Complete architectural design for a contemporary 2,068 sq ft home with 3 BEDROOMS, 2 FULL BATHROOMS, and a 2-CAR GARAGE + Completed topographic survey, ready for immediate use + Approved floor plans, ready to proceed with final permitting + Approved SEPTIC SYSTEM design, inc...What truly sets this property apart is that it includes advanced planning and development work for a contemporary style home, saving the buyer months of paperwork, upfront costs, and administrative risk. The package includes:Complete architectural design for a contemporary 2,068 sq ft home with 3 BEDROOMS, 2 FULL BATHROOMS, and a 2-CAR GARAGE + Completed topographic survey, ready for immediate use + Approved floor plans, ready to proceed with final permitting + Approved SEPTIC SYSTEM design, including the AEROBIC TREATMENT UNIT, meeting all current county requirements. No trees to remove.Compared to other raw lots in the area, this parcel offers substantial savings in technical studies, engineering, design work, and permitting time, which fully justifies its higher market value. This property is READY to build. Located in a rapidly growing area, 33976 is one of the most sought-after areas in Lehigh Acres.
View MoreCourtesy of
Agency Name: K & A Realty
Agency Phone: 305-270-1444
Agent Name: Jose Hector
Presented by
Agent Name: Matthew Stanley PA
Agent Phone: 954.661.2840
Agency Title: The Keyes Company
Request Info
Send an email with a link to
4033 26th St Sw, Lehigh Acres, FL 33976.
Email 4033 26th St Sw, Lehigh Acres, FL 33976
Thank you for your inquiry! As a thank you, we have a Special Mortgage Offer for You.
We would like to provide you a free, no-obligation, home loan pre-approval review.